Restaurante Cheese Me Barcelona
ADAPTACIÓN PLANO
ADAPTACIÓN PLANO
Ciudad deportiva CEE
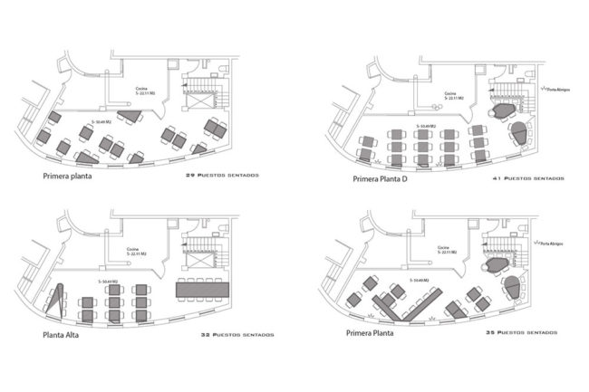
Adaptación de planos de interior del Restaurante Cheesme Me de Barcelona, diseñado por Daifuku Designs. Diferentes opciones de configuración de los espacios, distribuciones de mesas fijas y móviles,… sobre planos originales del arquitecto.
CLIENTE:
Daifuku Designs
DESTINO:
Barcelona
FECHA:
Junio 2005
CATEGORÍA:
Stands, Ferias y Espacios


